hero

Van concept tot mock-up

Nieuws/19 March 2026

“RoosRos straalt de sfeer van een familiebedrijf uit, met oprechte aandacht voor de mensen die straks in het gebouw wonen en werken.”  Wij werken samen met Zorgpartners Midden-Holland aan het ontwerp voor de herontwikkeling van zorglocatie De Breeje Hendrick in Lekkerkerk.

“RoosRos straalt de sfeer van een familiebedrijf uit, met oprechte aandacht voor de mensen die straks in het gebouw wonen en werken.” Met die woorden werd de samenwerking tijdens de architectenselectie getypeerd. Die menselijke benadering vormt ook nu nog het uitgangspunt bij het verder uitwerken van het ontwerp. Momenteel bevindt het project zich in de voorlopig ontwerpfase (VO), waarin de ruimtelijke opzet en de beleving van het gebouw steeds concreter worden.

Beleving en ervaring
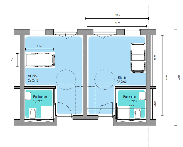
Om de toekomstige zorgomgeving zo goed mogelijk te begrijpen, wordt ook in deze fase veel aandacht besteed aan de ervaring van bewoners en medewerkers. Zo is er een mock-up van een zorgstudio gebouwd. Hiermee kunnen zorgmedewerkers en betrokkenen letterlijk ervaren hoe de ruimte werkt in de praktijk.

Projectarchitect John Mol: “Door een ruimte op ware grootte te ervaren, zie je meteen wat werkt en wat misschien nog beter kan. Dat helpt ons om samen tot een gebouw te komen dat echt aansluit bij de zorgpraktijk.”

Flexibele zorglandschappen
Volgens John is de voorlopig ontwerpfase het moment waarop de eerdere ideeën en concepten samenkomen in één duidelijke richting. “Tijdens de eerste ontwerpfase hebben we verschillende ruimtelijke concepten onderzocht. Die verkenning hielp om te bepalen welke structuur het beste past bij de zorgorganisatie, de bewoners en de locatie in Lekkerkerk. In de VO-fase werken we die uitgangspunten verder uit tot een samenhangend gebouw.”

Het nieuwe zorggebouw wordt niet meer opgezet als een reeks vaste verpleeggroepen met een vooraf bepaald aantal studio’s per woonkamer. In plaats daarvan ontstaan per verdieping flexibele zorglandschappen waarin zorgstudio’s, woonruimten en voorzieningen adaptief worden georganiseerd. Hierdoor kan de omvang en samenstelling van zorgclusters in de toekomst meebewegen met veranderende zorgconcepten, de inzet van mantelzorg en de realiteit van een krapper wordende arbeidsmarkt in een sterk vergrijzende samenleving. Op de begane grond van de Breje Hendrick komen functies zoals ontmoetingsruimten, werkplekken en mogelijk een brasserie die ook voor bezoekers toegankelijk is.

Dorps karakter
Bij het ontwerp is nadrukkelijk gekeken naar de schaal en sfeer van Lekkerkerk en het omliggende polderlandschap. Het gebouw krijgt een opzet die past bij het dorpse karakter van de omgeving.

“Het idee van ‘dorps wonen’ speelt een belangrijke rol,” zegt John. “We zoeken naar een gebouw, waar men spreekwoordelijk nog via de achterdeur binnenkomt, dat overzichtelijk en herkenbaar is, met plekken waar bewoners elkaar kunnen ontmoeten, maar ook waar rust en privacy mogelijk is.”

Toekomstbestendig zorggebouw
Naast de menselijke maat speelt duurzaamheid een belangrijke rol in het ontwerp. Het nieuwe gebouw wordt energiezuinig, flexibel en voorbereid op veranderende zorgbehoeften. Momenteel wordt ook onderzocht of houtbouw mogelijk is.

In de komende periode wordt het voorlopig ontwerp verder uitgewerkt richting een definitief ontwerp. Samen met Zorgpartners Midden-Holland en adviseurs werkt RoosRos stap voor stap toe naar een zorgomgeving waar bewoners zich thuis voelen en waar zorgverleners optimaal kunnen werken.